双螺杆泵针对各种典型应用工况机械密封选择
针对各种船舶应用,电厂,化工厂,炼油厂,原油开采输送领域中典型应用案例介绍及对应解决方案。
1.1 针对内河,湖泊,运河等油轮应用中输油泵机械密封的选择
内河,运河等穿梭的油轮,输油船一般大约长度不超过120米,宽度不超过10米,载重吨位一般在4000吨以内,配备8到10个货油舱。由于内陆河道吃水深度限制,一般船体设计比较扁平,船舱深度一般不超过5米,所以该应用螺杆泵一般是安装在船中部的甲板上。输送的介质通常是重质燃料油,比如(IFO380,IFO500, IFO750)。由于泵是安装在甲板上,在泵开启的时候,或卸较远舱位的油品的时候,泵的进口压力基本上会达到-0.3bar;极端工况,如抽底油扫舱的时候,由于吸上高度在大约4.5米,介质粘度比较高,加上管路阀门等阻力造成的压力损失,泵的进口压力能达到-0.8bar。这个时候一般会造成汽蚀,伴随着异常的振动噪音等。一般在使用过程中随着船舱油位下降到低液位的时候,螺杆泵会选择通过变频器控制降速运行。通用的转速是1500rpm,低液位的时候一般会选择750rpm。在最后扫舱阶段,会通过手动控制阀门开度,提升介质流速来增加泵吸上能力,达到扫舱,清仓目的,通常剩余在最终集油盘位置的介质可以只剩几升。
针对这种典型应用工况,双螺杆泵机械密封的选择需要注意泵经常需要应对的是抽空,负压的工况,机械密封摩擦面可能得不到良好的润滑和冷却,因此要求机械密封选材要有良好的自润滑性能的材质组合。此外应对自吸工况,静环有可能会造成轴向窜动,造成动静环之前出现磕碰损坏。为了避免该潜在风险,机械密封静环需要选择G13的静环而不能选择常规的G9静环,需要加装静环压盖避免造成轴向窜动损坏。还有该工况由于一般泵的加热保温没有做或很少用,特别是冬天时候运行容易出现由于介质粘度过高,造成机械密封过载。为了避免起泵的时候静环随动环转动造成二次密封O-型圈的损坏失效,在油品额定工况粘度超过 380cSt的时候,机械密封静环需要有一个定位销防止静环转动。完整的材质选择及机械密封的规格型号以博格曼机械密封为例,型号如下(注,机械密封材质代码说明件附件):
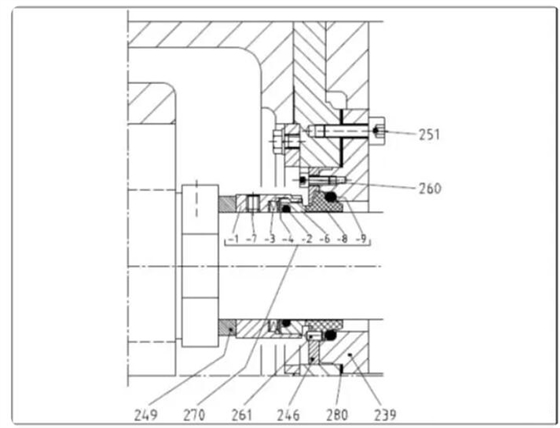
博格曼的通用型号为: M7SF,材料代码:SAVGG; 对应静环需要选择G13 而不是G9的静环;具体安装布局图请参考如下图1,单端面机械密封典型安装布局图,其中位号261件为静环定位销,位号246的零件为静环压盖(安全法兰)。

1.2 针对内河,湖泊,运河等船舶应用中其他化学品等介质输送工况机械密封的选择
内河应用的船舶除了输送原油和燃料油外,经常还会遇到输送如下介质的应用,粘度一般在(1-10 cSt): 汽油、柴油、煤油、石脑油、轻质燃料油、机床油、航空煤油、甲醇、乙醇、轻质化学品、海水、舱底水等等;一般内河船舶在输送化学品或多用途船舶的时候,会出现输送介质随着运输任务而发生变化的工况,螺杆泵可能需要应对变化的介质和变化的工况。
针对这种多变的介质及多变工况,机械密封选材除了以上提到的动静环摩擦副需要有良好的自润滑性能,良好的导热性能之外,最主要需要注意的是二次密封,即O-型圈的选材。很多化学品对氟橡胶(Viton)会有溶胀作用,一般的丁晴橡胶及氟橡胶用不住,所以针对这样的应用工况二次密封O-型圈选材应该选耐化学性能特别优良的全氟醚橡胶,比如 Kalrez6375, Chemraz 505 等,特别是在石脑油,甲醇,甲醚等化学品输送的时候,必须选用全氟醚密封圈。
此外机械密封静环的材料选择需要选择无压烧结的石墨环,即合作树脂浸渍碳石墨;静环需要选择G13结构,需要安装静环压盖防止空吸造成静环轴向窜动磕碰损坏或机械密封位置错位失效。机械密封结构及材料组合推荐使用:
博格曼机械密封:型号 M7NSF,材料代码:SBKGG 或Q1BKGG;
1.3 针对远洋油轮应用中机械密封的选择
远洋船舶和内河船舶的主要区别是,远洋船舶吨位比较大,一般可以在5000 吨以上到 30万吨这种量级。远洋船的吃水深度大即油舱的深度一般在6-10米;因此货油泵没法直接安装在甲板上,由于吸程过高,油品会无法吸出;因此货油泵一般会安装在专门的泵舱,涉及到防爆方面的要求,驱动装置如电机或柴油机会在机舱,中间通过气密的隔舱传动装置连接传动。也可以通过液压泵站液压马达的方式驱动;同理,液压泵站需要电机驱动,所以液压泵站及控制系统一般会安装在上层或甲板上,通过高压管线驱动液压马达,以便驱动货油泵。由于货油泵安装在舱底,所以泵进口管路在初始的时候,由于货油舱液位高度,一般会有0.6-1bar 的正压。在液位高的时候,为了保证输送效率,泵一般全速运转,在低液位的时候,需要降速运转。一般为了清仓或扫舱,即将舱底货油完全排空,一般需要配备如W5或W6的小的货油扫舱泵。进口负压也常常能达到 -0.8 bar。
针对如上应用,机械密封的型号及材质组合选择:
机械密封型号:M7SF, 材质组合:SAVGG 或 Q1AVGG;
1.4 油库,罐区、港口、电厂等应用中机械密封的选择及注意事项
在油库,罐区,港口,或海上钻井平台,电厂等应用场合中,双螺杆泵主要有两种用途:
1. 作为装船,卸船,装车,卸车,倒灌等过程使用;火车槽车卸车泵通过共用汇管连接卸车,需要泵进口有很好的吸上性能。或通过软管,鹤嘴管,输油臂等完成卸车,泵可以是固定或移动安装。
2. 增压泵,通过螺杆泵给输送介质加压,以便输送到不同的油罐或更高或更远处的终端用户,如电厂,化工厂等。
这种泵一般都是露天安装或室外安装,输送介质多变,需要注意的是如果泵没有良好的加热保温,特别是这种泵一般是间断运行,冬天的时候很容易出现冷起泵的工况,即使是春夏季,环境温度在20-30°C,输送介质的温度在环境温度的时候,粘度也可能会特别高。比如重质燃料油IFO500, 在20°C的时候,粘度能超过2500cSt。这样的工况起泵机械密封特别容易造成过载损坏。
因此针对这种应用工况,如果输送介质相对固定,泵安装在室内,泵有良好的加热保温等措施,运行工况比较友好,机械密封可以选择:M7NSF,材质组合:Q1AVGG;
如果是应对比较不确定的工况,室外或露天安装,加热保温等措施不具备或客户不使用,机械密封的选型原则是选择强度高的合金材料;机械密封可以选择:M7NSF,材质组合:Q1U2VGG;
1.5 炼油厂、炼化厂、高温沥青输送应用中机械密封的选择及注意事项
在炼油厂,炼化厂中,典型的双螺杆泵应用有输送柏油,煤焦油,沥青,渣油等,介质的温度范围一般在 100-400°C;具体取决于介质的种类,品种及生产过程。特别是在渣油负压蒸馏过程中,温度比较高,伴随高粘,负压等工况,对泵及机械密封的要求就特别高。
螺杆泵泵本身选择是双层壳体,全泵体加热保温的焊接结构。机械密封时候选择耐高温的金属波纹管双端面集装式机械密封。根据具体介质及工况要求,选择匹配API Plan 53A 或API Plan 54 冲洗方案。典型应用案例,比如匹配W7TXZ-94/2,输送介质沥青,机械密封选择:
机械密封型号:MFLWT80-MFL85 (双端面集装式金属波纹管机械密封);
材料组合:AQ1GM6T4-AQ1GM5M6G1
冲洗系统:API-Plan 54
针对高温,高粘应用,机械密封应该选用双端面集装式加带压冲洗方案,以便继续密封能达到良好的润滑和冷却,保证泵和机械密封的使用寿命。如果只是从降成本方面考虑,能接受泄露的话,可以选用金属波纹管单端面集装式机械密封。机械密封需要有独立的加热及保温装置。
1.6 石化厂中高粘聚合物输送应用中机械密封的选择及注意事项
各种聚合物之间的特性本身就有很大的差别,主要表现在粘度及密度等特性差异,包括运动剪切速度对粘度的影响等,实际的粘度范围在100-200,000 cSt 之间,甚至有可能更高。这取决于该介质是否是牛顿特性的介质或是触变性介质,即起泵之前介质的粘度非常高,但随着泵启动,介质流动之后粘度大大降低,这样的特性非常影响泵的设计选型。鉴于此,输送高粘聚合物等泵必须带变频驱动,以便调节泵的转速,调节泵的排量等。而且泵的进出口压力压力变化范围也可能非常大,进口有时候接近真空的负压状态,也可能是反应釜中出来的进口压力达到8.5Mpa(塞拉尼斯的流程泵);化学反应的过程可能持续几个小时甚至几天;反应结束后,泵和管道会用特定的溶剂进行循环冲洗,这个过程也可能持续几个小时,一般溶剂的粘度都非常低,在0.5-1 cSt 左右;所有该流程泵需要适合高粘度也需要适合低粘度工况运行。
以上工况机械密封的选择,原则上都是选双端面集装式机械密封,配置只是API Plan 53C 或API Plan 54 的冲洗方案。由于高粘聚合体特性不同,选择密封材料一般需要针对材料特性专门选择,建议根据介质特性和密封厂家确认机械密封材质组合。
以下典型应用案例是塞拉尼斯工厂输送醋酸乙烯脂应用案例:
机械密封规格型号是:HV-D10/102, 双端面集装式串联结构布局;
材质组合:QQEG1+QQEG1; 冲洗系统:API Plan 54;
1.7 陆地或海水油田中双螺杆泵应用中机械密封的选择及注意事项
油田中螺杆泵主要有如下几种典型应用,原油倒灌泵,装船或卸船泵,管道增压泵,生产水输送泵,含油污水输送泵,油气混输泵等。由于原油不同产区油品的差别特别大,粘度,组份等都不一样,含税率不同,粘度差别也很大。还有,一般油田含水污油或生产水都类似盐水或海水,含有各自盐,氯离子,甚至二氧化硫等,这种水在温度稍微高一些,具有非常强的腐蚀性。因此对于输送生产水,含水污油等介质,需要了解介质组份,温度,粘度,正确选择泵体过流部件及机械密封的材质组合才能保证该泵正常工作。
1.7.1 输送经过分离处理的干净原油输送泵
干净的原油输送泵,机械密封选择比较简单,根据给定工况,确认介质温度,粘度范围,一般选择: 规格型号:M7NSF, 材质组合:SAVGG 或 Q1AVGG 即可;
1.7.2 生产水(地层水)输送泵机械密封选择
对应这种应用机械密封选择及材料组合,需要和客户确定生产水的温度,具体组份,特别是氯离子,硫化物等含量,确定是否属于强腐蚀的应用范围。典型的机械密封型号及材料组合是:M7NSF, 材料组合:Q1Q12KMM; 金属保持架及弹簧选用哈氏合金材质。
1.7.3 复杂工况油气混输泵机械密封选择案例
油气混输泵的工况中,泵送介质含油,含水,还含天然气,而且组份复杂,甚至还含有少量沙子等固体可以。混合介质从油井抽出,未经处理二需要混合输送,机械密封需要应对可能极高的腐蚀性,磨蚀性的介质;而且含气比不固定,有时候甚至会出现100%含气的情况,这时候如果是普通的机械密封,得不到良好的润滑和冷却很快就会失效。而且一般需要解决大排量,高含气比的工况,机械密封有时候回安装在泵的出口端即高压端,机械密封还需要解决承受高压问题。所以机械机械密封至少选平衡型机械密封带API52冲洗方案,或选特殊的双端面集装式机械密封,带API53/54 冲洗方案。
以下介绍一个典型的应用案例机械密封的选择方案,哈萨克斯坦油田中螺杆泵型号为:MPC268-45/1; 进口压力Ps=6bar, 出口压力Pd=24bar, 排量324m3/hr; 含气比GVF=96%,介质中含有H2S等;应对以上工况,机械密封解决方案为:
型号:HRKS1-D-E2-L+R; 材质组合:Q2Q2KMG1-AQ2VMG; 冲洗方案为:API Plan53/5


